Architectural & Interior Design Studio


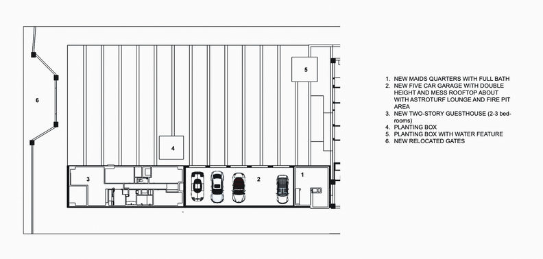
Step into The Gold, where luxury and nature engage in a profound discourse on coexistence. Guided by Guy Tetrick's unparalleled four decades of design expertise, this redesigned residential masterpiece transcends the concept of home; it's a symphony of extravagance harmonizing with the great outdoors. Prepare to be enchanted by 4395 Pine Tree Drive in Miami Beach. This custom-built, fully automated smart home stands as a contemporary masterpiece, offering the pinnacle of luxury waterfront living. Spanning 11,985 total square feet, this residence comprises three separate structures, including a VIP guest suite and a health spa with a state-of-the-art fitness center. The centerpiece is a breathtaking 1,600-square-foot pool, enveloped by lush flora and fauna. Boasting 8 bedrooms and 9 bathrooms, this interior is adorned with First Floor Entry, a Cooking Island, Bar, and Closet Cabinetry. This is more than a home; it's a private sanctuary of opulence and sophistication, meticulously redesigned with new finishes, fixtures, and a complete guest wing.











